OBJEKAT A – STAN 1

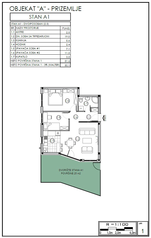
Stan 1 u objektu „A“ je po strukturi dvoiposoban stan (2.5) površine 50,1 m2 sa prostranom dnevnom sobom i velikim trokrilnim portalom prema dvorištu. Uz stan se gratis dobija ograđeno dvorište površine 25 m2!!! Stan je lociran na prizemlju objekta. Stan je podeljen na dnevnu i noću zonu. U okviru dnevne zone su smešteni dnevna soba, kuhinja i trpezarija dok su u okviru noćne zone smeštene dve sobe i kupatilo. Cena stana je 1.950 €/m2 + PDV. Početak izgradnje je Mart, 2026. godine a planirani završetak Maj, 2027. godine.
VIDEOPREZENTACIJU I RENDERE MOŽETE POGLEDATI ISPOD:
Dnevna soba:

Dnevna soba i kuhinja:

Kuhinja i trpezarija:

Bračna soba:

Dečja soba:

Kupatilo:

CENOVNIK |
POŠALJITE NAM UPIT |
