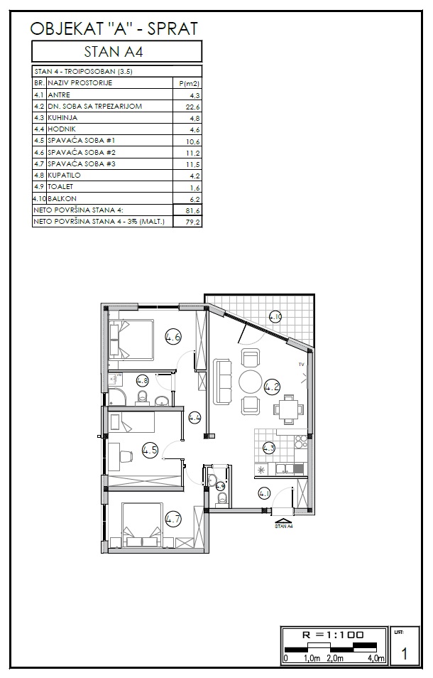
OBJEKAT A – STAN 4

Stan 4 u objektu „A“ je po troiposoban stan (3.5) površine 79,2 m2 sa prostranom dnevnom sobom i velikim trokrilnim portalom sa pogledom na grad. Stan je lociran na I spratu objekta. Stan je podeljen na dnevnu i noću zonu. U okviru dnevne zone su smešteni dnevna soba, kuhinja, trpezarija i toalet dok su u okviru noćne zone smeštene tri sobe i kupatilo. Cena stana je 1.950 €/m2 + PDV. Početak izgradnje je Mart, 2026. godine a planirani završetak Maj, 2027. godine.
VIDEOPREZENTACIJU I RENDERE MOŽETE POGLEDATI ISPOD:
Dnevna soba:

Trpezarija i kuhinja:

Trpezarija i kuhinja:

Bračna soba:

Dečja soba #1:

Dečja soba #2:

Kupatilo:

Toalet:

CENOVNIK |
POŠALJITE NAM UPIT |

