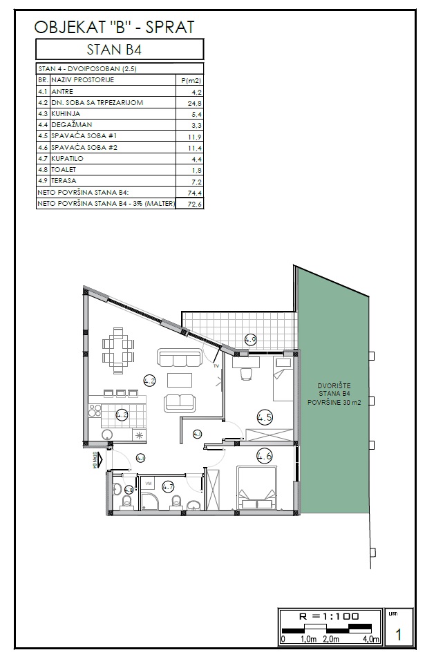
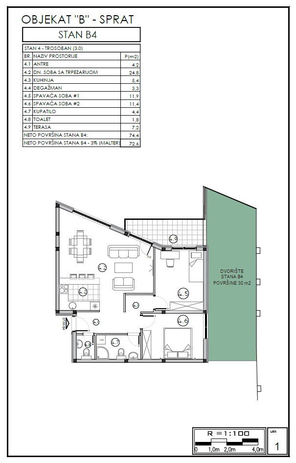
OBJEKAT B – STAN 4

Stan 4 u objektu „B“ je luksuzan trosoban stan (3.0) površine 72,6 m2 sa prostranom dnevnom sobom i velikim trokrilnim portalom prema dvorištu. Uz stan se gratis dobija ograđeno dvorište površine oko 30 m2!!! Stan je lociran na I spratu objekta. Stan je podeljen na dnevnu i noću zonu. U okviru dnevne zone su smešteni dnevna soba, kuhinja, trpezarija i toalet dok su u okviru noćne zone smeštene dve sobe i kupatilo. Cena stana je 1.950 €/m2 + PDV. Početak izgradnje je Mart, 2026. godine a planirani završetak Maj, 2027. godine.
VIDEOPREZENTACIJU I RENDERE MOŽETE POGLEDATI ISPOD:
Dnevna soba:

Dnevna soba i kuhinja:

Trpezarija i kuhinja:

Bračna soba:

Dečja soba:

Kupatilo:

Toalet:

CENOVNIK |
POŠALJITE NAM UPIT |

