OBJEKAT B – STAN 2 – STAN JE PRODAT!!!

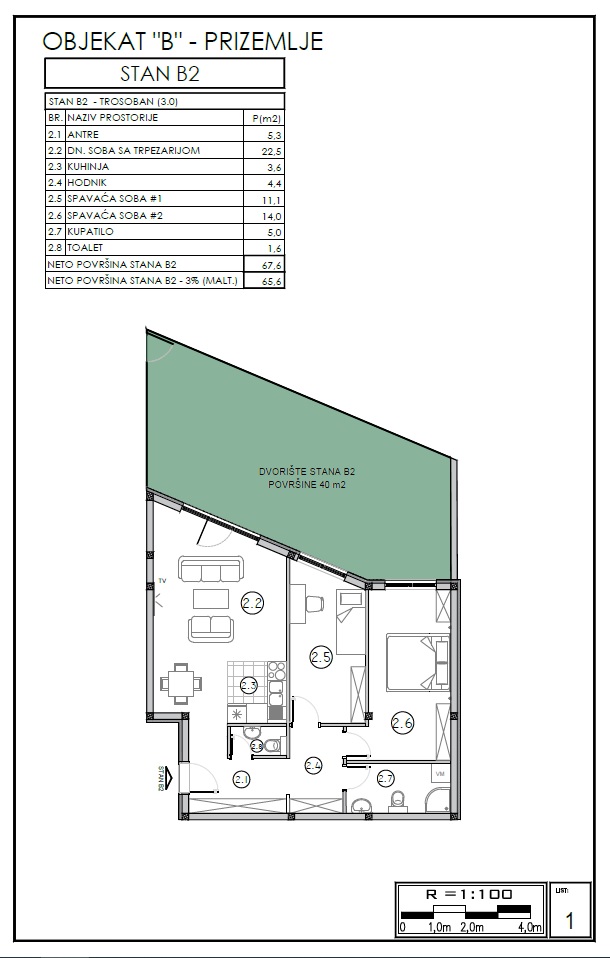
Stan 2 u objektu „B“ je po strukturi trosoban stan (3.0) površine 65,6 m2 sa prostranom dnevnom sobom i velikim trokrilnim portalom prema dvorištu. Uz stan se gratis dobija ograđeno dvorište površine 40 m2!!! Stan je lociran na prizemlju objekta. Stan je podeljen na dnevnu i noću zonu. U okviru dnevne zone su smešteni dnevna soba, kuhinja, trpezarija i toalet dok su u okviru noćne zone smeštene dve sobe i kupatilo. STAN JE PRODAT TAKO DA VIŠE NIJE NA RASPOLAGANJU!
VIDEOPREZENTACIJU I RENDERE MOŽETE POGLEDATI ISPOD:
Dnevna soba:

Dnevna soba i kuhinja:

Trpezarija i kuhinja:

Bračna soba:

Dečja soba:

Kupatilo:

CENOVNIK |
POŠALJITE NAM UPIT |

